Logo Cliente

Agenzia Collini

COLLINI GEOM. PIERGIORGIO

Via Cima Tosa, 26 38086 M. di Campiglio
REA TN73804
p.iva 00186300224
c.f. CLLPGR43L14G681S


RICHIEDI INFORMAZIONI PER L'ACQUISTO

Telefono: +39 0465 442500

Email: info@agenziacollini.com

Trilocale - TRILOCALE DUE BAGNI - PRESANELLA -NRD- -
Madonna di Campiglio - Viale Dolomiti di Brenta

Appartamento in vendita presso il Residence Presanella, situato all'ingresso di Campiglio a pochi metri dall'impianto del Colarin. Si trova al secondo piano con splendida vista ad est.

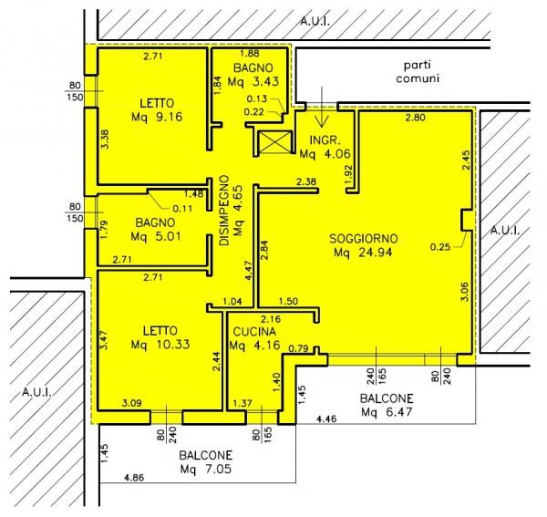
Composto da: ingresso, soggiorno con zona pranzo, cucina separata, due stanza da letto e due bagni, garage, cantina.

Mq appartamento: 77 circa

Mq balconi: 13,50

 

Prezzo: 600.000 E

  • <b>Piantina</b>
  • <b>Misure</b>
  • <b>Ingresso</b>
  • <b>Zona pranzo</b>
  • <b>Soggiorno</b>
  • <b>Soggiorno_2</b>
  • <b>Cucina</b>
  • <b>Cucina_2</b>
  • <b>Balcone</b>
  • <b>Balcone-2</b>
  • <b>Vista dal balcone</b>
  • <b>Bagno cieco</b>
  • <b>Bagno cieco_2</b>
  • <b>Matrimoniale</b>
  • <b>Matrimoniale_2</b>
  • <b>Bagno finestrato</b>
  • <b>Bagno finestrato 2</b>
  • <b>Bagno finestrato 3</b>
  • <b>Seconda stanza da letto</b>
  • <b>Seconda stanza da letto_2</b>
  • <b>Seconda stanza da letto_3</b>

RICHIEDI INFORMAZIONI PER LA PRENOTAZIONE O L'ACQUISTO

Iscrivimi alla Newsletter

Acconsento alla Privacy:Privacy *: