Agenzia Immobiliare Collini a Madonna di Campiglio
Il tuo punto di riferimento a Madonna di Campiglio per affitti, acquisti, vendite di appartamenti, ville ed immobili commerciali. Dal 1969 opera nel settore immobiliare con serietà, esperienza e cortesia.
Chiedi a noi per:
-
Affitti per appartamenti, ville, per periodi settimanali, mensili, stagionali.
-
Vendita, acquisto appartamenti, ville, immobili commerciali. Valutazioni e stime gratuite e senza impegno.
-
Consulenza per progettazione, ristrutturazioni e manutenzioni del tuo immobile a Madonna di Campiglio.
-
Amministrazione di condominio.
Appartamenti per vacanze in VENDITA a Madonna di Campiglio e Campo Campo Carlo Magno
|
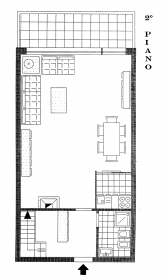
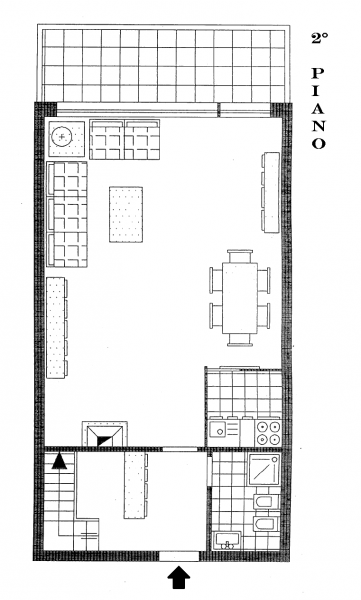
Quadrilocale -
QUADRILOCALE SPINALE - SILSCO
|
|
|
Appartamento con due bagni e tre stanze da letto disposto su due piani, sito presso condominio in Via Spinale nel centro di Madonna di Campiglio all’interno di un edificio condominiale molto ben tenuto con ampi e curati spazi interni ed esterni. Secondo piano con ascensore, con 5 posti letto complessivi composto da: al secondo piano ingresso, soggiorno, cucina separata e bagno; al terzo piano tre stanze ed un bagno. Dotato inoltre di posto auto in garage e cantina. Posizione eccezionale per lo sci, a meno di 100mt. dalla cabinovia Spinale, di fronte al laghetto ed a pochi metri dal centro e da tutti i negozi, locali e servizi della località. La posizione ed il fatto di avere il posto auto in centro lo rendono ideale quale punto di appoggio infatti una volta arrivati potrete parcheggiare l’auto e non usarla per tutto il soggiorno.
Superficie: 63,50 mq
Richiesta: 550.000 Euro |
RICHIEDI INFORMAZIONI PER LA PRENOTAZIONE O L'ACQUISTO
Appartamenti in vendita a Madonna di Campiglio, Campo Carlo Magno, S.Antonio Mavignola
|
Madonna di Campiglio
Appartamento sito in piccolo e tranquillo condominio, molto vicino alla cabinovia Pradalago per cui comodissimo per lo sci, in strada privata chiusa da sbarra. |
Madonna di Campiglio
appartamento monolocale sito presso il condominio in via Spinale nel centro di Madonna di Campiglio all’interno di un edificio condominiale molto ben tenuto con ampi... |
Madonna di Campiglio
Caratteristico appartamento in vendita in zona Campiglio Sud, nei pressi del nuovo impianto Colarin che porta direttamente sulle piste della 5 Laghi. Sito in complesso immerso nel verde... |
Agenzia Collini - COLLINI GEOM. PIERGIORGIO
Via Cima Tosa, 26 38086 M. di Campiglio
REA TN73804
p.iva 00186300224
c.f. CLLPGR43L14G681S































